അഞ്ച് സെന്ററിൽ പണിയാവുന്ന ഏറ്റവും വലിയ പരിസ്ഥിതി സൗഹൃദ നാല് കെട്ടുമായി മൂഴിക്കുളംശാല
First Published : 2021-04-28, 11:23:33pm -
1 മിനിറ്റ് വായന

മൂഴിക്കുളംശാല രക്ഷാധികാരി പ്രേംകുമാർ ടി.ആർ. എഴുതുന്നു
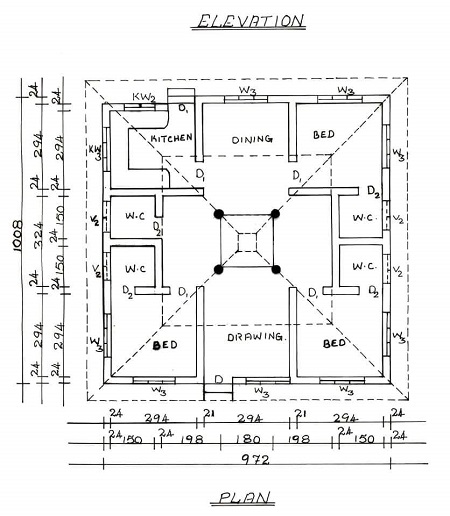
മൂഴിക്കുളം ശാലയിലെ ചൂടിനെ അതിജീവിക്കാൻ കഴിയുന്ന പ്രകൃതി സൗഹൃദ നാലുകെട്ട്. 5 സെന്റിൽ പണിയാവുന്ന ഏറ്റവും വലിയ നാലുകെട്ട്. 1089 ച അടി. വിസ്തീർണ്ണം. കാറ്റും വെളിച്ചവും യഥേഷ്ടം കയറി ഇറങ്ങി പോകുന്ന ഇടം. കോണുകളിൽ കൂടി കടന്നുപോകുന്ന കർണ്ണ സൂത്രങ്ങൾ . ഇഷ്ടിക ജാലികകൾ . ചൂടത്ത് നിന്ന് അകത്തേക്കുകയറുമ്പോൾ തണുപ്പനുഭവപ്പെടും. വീടിനകത്ത് എപ്പോഴും ഫ്രഷ് എയർ ഉണ്ടാകും. പഴകിയ വായുവോ ഇരുട്ടു മൂടിയ മൂലകളോ ഉണ്ടാകില്ല. ചോർച്ചയും ഇല്ല.

പല്ലിയും പാറ്റയും പൂച്ചിയും ഉറുമ്പും വൈറസുകളും പച്ച കുതിരയും മരക്കുതിരയും തേരട്ടയും പഴുതാരയും ഇരുതല മൂരിയും കൊതുകും ഞണ്ടും ഞണ്ടളയും (നടു മുറ്റത്ത് ) തവളയും കിളിയും കിളിക്കുഞ്ഞും കിളി മുട്ടയും തുമ്പിയും ചിത്രശലഭവും കാറ്റും മഴയും വെയിലും നിലാവും മാങ്ങയും ഒക്കെ വീടിനുള്ളിലേക്ക് കടന്നുവരും. അപൂർവ്വമായി വളവളപ്പൻപാമ്പും വിരുന്നിന് വന്നിട്ടുണ്ട്. ഇവരൊക്കെ കൂടപിറപ്പുകളാണ്. ഇവർക്കൊപ്പമാണ് ഞങ്ങളുടെ താമസം.

നടുമുറ്റത്തു കൂടെ ആകാശം, നക്ഷത്രം ചന്ദ്രൻ എന്നിവരെയും കാണാം. നിലാവിന്റെ കക്ഷ്ണം തറയിൽ പറ്റി പിടിച്ചു കിടക്കുന്നത് മനോഹരമായ കാഴ്ചയാണ്. വീടിനും ചുറ്റും നിറയെ കുഴിയാനയുണ്ട്. മണ്ണിരയുണ്ട്. സൂഷ്മ ജീവികളുണ്ട്.ചീവിടുണ്ട്. കിളികളുണ്ട്. മണ്ണട്ടയുണ്ട്. ഓന്തും അരണയും എലിയും പൂച്ചയും പട്ടിയും ഉണ്ട്. പുഴത്തീരം വഴി കുരങ്ങന്മാർ വരാറുണ്ട്. പുരപുറത്ത് ഒരിക്കൽ മയിലും വന്നു.പച്ചപ്പുണ്ട്. നാട്ടുഭക്ഷണവും അടുക്കള വൈദ്യവും സുമായുണ്ട്. ഇതൊക്കെയാണ് ഞങ്ങളുടെ കോവിഡ് പ്രതിരോധം.മറ്റൊരു ലോകം മറ്റൊരു ജീവിതം സാദ്ധ്യമാണ്. വർഷാവർഷം സുഖ വിവരം അന്വേഷിക്കാൻ പ്രളയവും വീടനകത്തേക്ക് വരാറുണ്ട്. ബഹു മാനാർത്ഥം ഞങ്ങൾ വീടൊഴിഞ്ഞ് പോകും.

Green Reporter
Green Reporter Desk
Visit our Facebook page...
Responses
0 Comments
Leave your comment
മൂഴിക്കുളംശാല രക്ഷാധികാരി പ്രേംകുമാർ ടി.ആർ. എഴുതുന്നു
മൂഴിക്കുളം ശാലയിലെ ചൂടിനെ അതിജീവിക്കാൻ കഴിയുന്ന പ്രകൃതി സൗഹൃദ നാലുകെട്ട്. 5 സെന്റിൽ പണിയാവുന്ന ഏറ്റവും വലിയ നാലുകെട്ട്. 1089 ച അടി. വിസ്തീർണ്ണം. കാറ്റും വെളിച്ചവും യഥേഷ്ടം കയറി ഇറങ്ങി പോകുന്ന ഇടം. കോണുകളിൽ കൂടി കടന്നുപോകുന്ന കർണ്ണ സൂത്രങ്ങൾ . ഇഷ്ടിക ജാലികകൾ . ചൂടത്ത് നിന്ന് അകത്തേക്കുകയറുമ്പോൾ തണുപ്പനുഭവപ്പെടും. വീടിനകത്ത് എപ്പോഴും ഫ്രഷ് എയർ ഉണ്ടാകും. പഴകിയ വായുവോ ഇരുട്ടു മൂടിയ മൂലകളോ ഉണ്ടാകില്ല. ചോർച്ചയും ഇല്ല.

പല്ലിയും പാറ്റയും പൂച്ചിയും ഉറുമ്പും വൈറസുകളും പച്ച കുതിരയും മരക്കുതിരയും തേരട്ടയും പഴുതാരയും ഇരുതല മൂരിയും കൊതുകും ഞണ്ടും ഞണ്ടളയും (നടു മുറ്റത്ത് ) തവളയും കിളിയും കിളിക്കുഞ്ഞും കിളി മുട്ടയും തുമ്പിയും ചിത്രശലഭവും കാറ്റും മഴയും വെയിലും നിലാവും മാങ്ങയും ഒക്കെ വീടിനുള്ളിലേക്ക് കടന്നുവരും. അപൂർവ്വമായി വളവളപ്പൻപാമ്പും വിരുന്നിന് വന്നിട്ടുണ്ട്. ഇവരൊക്കെ കൂടപിറപ്പുകളാണ്. ഇവർക്കൊപ്പമാണ് ഞങ്ങളുടെ താമസം.

നടുമുറ്റത്തു കൂടെ ആകാശം, നക്ഷത്രം ചന്ദ്രൻ എന്നിവരെയും കാണാം. നിലാവിന്റെ കക്ഷ്ണം തറയിൽ പറ്റി പിടിച്ചു കിടക്കുന്നത് മനോഹരമായ കാഴ്ചയാണ്. വീടിനും ചുറ്റും നിറയെ കുഴിയാനയുണ്ട്. മണ്ണിരയുണ്ട്. സൂഷ്മ ജീവികളുണ്ട്.ചീവിടുണ്ട്. കിളികളുണ്ട്. മണ്ണട്ടയുണ്ട്. ഓന്തും അരണയും എലിയും പൂച്ചയും പട്ടിയും ഉണ്ട്. പുഴത്തീരം വഴി കുരങ്ങന്മാർ വരാറുണ്ട്. പുരപുറത്ത് ഒരിക്കൽ മയിലും വന്നു.പച്ചപ്പുണ്ട്. നാട്ടുഭക്ഷണവും അടുക്കള വൈദ്യവും സുമായുണ്ട്. ഇതൊക്കെയാണ് ഞങ്ങളുടെ കോവിഡ് പ്രതിരോധം.മറ്റൊരു ലോകം മറ്റൊരു ജീവിതം സാദ്ധ്യമാണ്. വർഷാവർഷം സുഖ വിവരം അന്വേഷിക്കാൻ പ്രളയവും വീടനകത്തേക്ക് വരാറുണ്ട്. ബഹു മാനാർത്ഥം ഞങ്ങൾ വീടൊഴിഞ്ഞ് പോകും.

Green Reporter Desk







